Kleinen Räumen mehr Raum geben – Talitha aka @Talitha Bainbridge weiß genau, worauf es dabei ankommt. Die 30-jährige Designenthusiastin wohnt mit ihrem Mann Michael selbst auch in einer kleinen Eigentumswohnung in der Nähe von Basel. Dass ihr Apartment gerade mal 45 qm misst, würde man auf den ersten Blick nicht vermuten …
Talitha verrät uns im Interview ihre Stauraumlösungen, ihre drei besten Tipps für kleine Wohnungen und wie sie niedrige Wände höher wirken lässt.


Gemeinsam mit ihrem Mann Michael arbeitet Talitha als Interior Designer in der Multi Level Design Agency ZWEI Design.
Liebe Talitha, bitte erzähl uns doch kurz, wie Michael und du lebt.
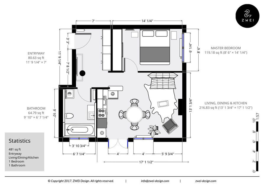
Wir wohnen in einer kleinen Eigentumswohnung aus den 90er-Jahren, die unsere Familie zu meinen Studentenzeiten gekauft hat. Insgesamt hat die Wohnung mit Wohnzimmer inklusive Küche, Schlafzimmer und Bad 45 qm. Dieses kleine Apartment war ideal, um uns einen tollen Start in das Berufs- und Eheleben zu ermöglichen. Das Apartment an sich ist nichts Besonderes, aber es hat meinem Mann und mir erlaubt, auf kleinem Raum unseren Stil zu entwickeln und zu festigen.

Auf 45 qm befinden sich Wohnzimmer inklusive Küche, einem Schlafzimmer und einem Bad.
Was ist euch bei der Einrichtung wichtig?
Generell versuchen wir in unserer momentanen Lebenssituation, das meiste aus wenig herauszuholen. Unser Ziel ist es, interessante Momente in den unterschiedlichen Räumen zu schaffen, damit diese lebendig und komplexer wirken. Ich liebe die Ruhe und die Natur. Beides sind Elemente, die ich auf unterschiedlichen Wegen in unser Zuhause zu bringen versuche. Ich liebe sanfte Töne, geometrische Formen, klare Linien und Kontrast durch Farbe und Materialien.


„Es war sehr wichtig, die doch sehr langweilig geschnittene Wohnung durch architektonische Highlights interessanter zu gestalten.“


Schwarz und Grün stehen im Kontrast zu den grauen Wänden. So entsteht eine Dynamik, die dem Raum den spannenden Charakter verleiht.
Was galt es beim Einrichten der kleinen Wohnung zu beachten?
Es war sehr wichtig, die doch sehr langweilig geschnittene Wohnung durch architektonische Highlights interessanter zu gestalten. So haben wir im Wohnzimmer eine Vorhangwand geschaffen, die Fenster größer erscheinen lassen soll. Außerdem haben wir einen Fake-Kamin in die Mitte des Wohnzimmers gebaut, den wir als Kontrast schwarz gestrichen haben. Zusätzlich haben wir einen Kaminschacht aufgebaut, der den Blick nach oben führen soll. Wir versuchen, nur recht niedrige Möbel zu kaufen, um die Horizontlinie in den einzelnen Zimmern auf geringer Höhe zu halten. Die Räume wirken dadurch viel höher. Als Hilfsmittel haben wir zum Beispiel im Schlafzimmer Wandpaneele installiert.


„Die Kunst besteht darin, die Möbel und Materialien so einzusetzen, dass diese harmonisch miteinander funktionieren und zugleich ein gewisses Maß an Spannung erzeugen.“

Welche Farben eignen sich besonders für kleine Räume?
Ich glaube nicht, dass man in kleineren Räumen farblich limitiert ist. Oft hört man, dass dunkle Farben einen Raum kleiner wirken lassen. Ich empfinde das nicht so. Meiner Meinung nach muss Farbe einfach richtig eingesetzt werden. Wenn ich beispielsweise einen Raum gemütlicher und wärmer wirken lassen möchte, darf ruhig auch ein dunkler Farbton in das Designkonzept. Die gesamtheitliche Farbpalette ist hier entscheidend. Für mich ist es wichtig, dass die einzelnen Elemente innerhalb eines Raumes harmonisch zusammenwirken und in einem gewissen Rhythmus zueinander stehen.
Für welche Wandfarben habt ihr euch entschieden?
Wir haben für die Wände helle Farben wie Grau und Ocker ausgewählt.
Die Kunst bei kleineren Räumen besteht darin, die Möbel und Materialien so einzusetzen, dass diese harmonisch miteinander funktionieren und zugleich ein gewisses Maß an Spannung erzeugen. So können in kleinen Räumen interessante Momente entstehen und die Raumwirkung kann positiv beeinflusst werden.


Im Schlafzimmer dominieren erdige Farbtöne. Als Kontrast zur Wandfarbe haben sich Talitha und Michael für weiße Möbel und weiche Materialien entschieden.
Welche einfachen Mittel können eingesetzt werden, um einen kleinen Raum mit kleinem Budget größer erscheinen zu lassen?
Das Tolle an einem kleinen Raum ist, dass man mit recht wenigen Objekten viele interessante Momente schaffen kann. Ein Tipp wäre es, sich bewusst für einzelne Objekte, wie eine Skulptur, einen interessanten Sessel, ein tolles Bild oder einen schönen Stoff, zu entscheiden. Mit diesen ausgewählten Objekten kann der Blick geleitet werden. Persönlich versuchen wir, unsere Möbel und Objekte so zu platzieren, dass das Auge angeregt wird, durch den Raum zu wandern und an bewussten Stellen „stecken“ zu bleiben. So leiten wir den Blick und der Raum wirkt dadurch größer und interessanter.


Ein wichtiges Thema in kleinen Räumen ist ja auch Stauraum ...
Vorab ist hier zu sagen, dass auf kleinem Raum generell Abstriche gemacht werden
müssen. Wer auf kleinem Raum wohnt, kann leider nicht Unmengen an Dingen sammeln. Michael und ich misten bestimmt zwei- bis dreimal im Jahr komplett aus und trennen uns von den Dingen, die es nicht mehr „wert“ sind, den „wenigen“ Platz in unserem Zuhause einzunehmen. Generell finde ich dies eine sehr schöne Übung. Michael und ich bekommen so einen ganz anderen Bezug zu den Dingen, die in unserem Zuhause stehen, da sich diese wirklich einen Platz in unserem Zuhause verdienen mussten.
Hast du Tipps für gute Stauraumlösungen?
Wir versuchen natürlich, jede Möglichkeit so gut es geht zu nutzen. Wir haben beispielsweise im Eingang die komplette Wand mit einem deckenhohen Einbauschrank verkleidet. In diesem befindet sich ein Großteil unserer täglichen Nutzsachen. Beim Thema Kleidung haben wir uns der Marie-Kondo-Art verschrieben, die in der Tat mehr Raum schafft. Eine Hausregel bei uns: Alles muss seinen Platz haben.


Jeder Quadratmeter wird ganz bewusst genutzt: Die größte Stauraummöglichkeit befindet sich im Flur.
Was heißt das genau?
Dass alles, was wir haben, seinen zugewiesenen Platz erhält. Von meiner Handtasche über das Fahrradreparaturset bis hin zu den täglichen Briefen, die wir erhalten. Zu Hause wird allen Flächen ein Zweck zugewiesen. Das heißt, dass die Post nicht einfach auf dem Esstisch landet und so wertvollen Platz für die nächsten Stunden oder Tage wegnimmt. Für die Post haben wir im Eingang eine Ablagebox mit mehreren Fächern, in welche die Briefe sofort eingeordnet werden. Dasselbe gilt für alle anderen Objekte. Meine Handtasche gehört auf einen kleinen Hocker in der Küche, nicht auf den Küchenstuhl oder auf den Boden im Flur, wo sie jeweils unnötig Platz wegnehmen würde. Bis wir dieses System einmal „perfektioniert“ hatten, hat es natürlich einige Zeit gedauert. Aber ich muss sagen: Es macht das Leben auf kleinem Raum extrem angenehm und effizient. Im Umkehrschluss heißt das natürlich erneut, dass wir uns jedes Mal, wenn wir etwas Neues kaufen und der Platz dafür nicht vorhanden ist, von etwas Altem trennen müssen.


Zum Abschluss: Verrätst du uns deine drei Top-Tipps fürs Wohnen auf kleinem Raum?
Tipp 1
Keine Angst vor Farbe und Volumen. Die Balance und die Farbpalette machen den Unterschied. Hier ist auf eine harmonische Farbpalette zu achten, die bewusst mit Kontrasten arbeiten darf. Auch bei dem eingesetzten Volumen im Raum ist es wichtig, dass ein gewisses Maß an Rhythmus entsteht und das Auge durch gezielt eingesetzte Objekte geführt wird.
Tipp 2
Gut überlegen, was man auf kleinem Raum wirklich braucht und wo man es unterbringt. Der Raum, der zur Verfügung steht, muss gut durchdacht und geplant werden. Dinge erhalten mehr Wertigkeit, wenn diese einen fest zugeschriebenen Platz erhalten.
Tipp 3
Manipulation durch Blickführung und Hingucker. Der Raum darf durch die eingesetzten Möbel und Objekte so manipuliert werden, dass er sich in seiner Architektur verändert. Niedrige Horizontlinien strecken den Raum. Ein Hingucker wie ein Kamin, ein schöner Sessel oder ein alter Wandschrank geben dem Raum Charakter.
Vielen Dank, liebe Talitha, für dieses informative Interview!
Um in Zukunft kein Bild mehr zu verpassen, könnt ihr @Talitha Bainbridge hier folgen. Denn es wird spannend: Noch in diesem Jahr ziehen sie aus ihrer geliebten 45-qm-Wohnung in ein neues Haus!












