
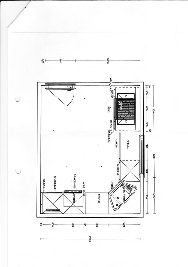
da ich zu doof bin einen beitrag bei "fragen" reinzustellen versuche ich es auf diesem wege. meine küche soll anders werden und dazu bitte ich euch mitglieder mir eure küchengrundriss-vorschläge mitzuteilen. es ist alles möglich. bin für jeden vorschlag dankbar. was muß: - essplatz für 4 personen - spühle im eck und links daneben die spühlmaschine muß so bleiben wg. der anschlüsse. ansonsten bin ich wirklich für alles offen: Küche in U-Form, L-Form, Küchenzeile - bitte alles mitteilen was euch einfällt. vielen dank. versuche weiterhin auch noch einen beitrag bei fragen reinzubekommen... DANKE 
Wohnideen, Anders